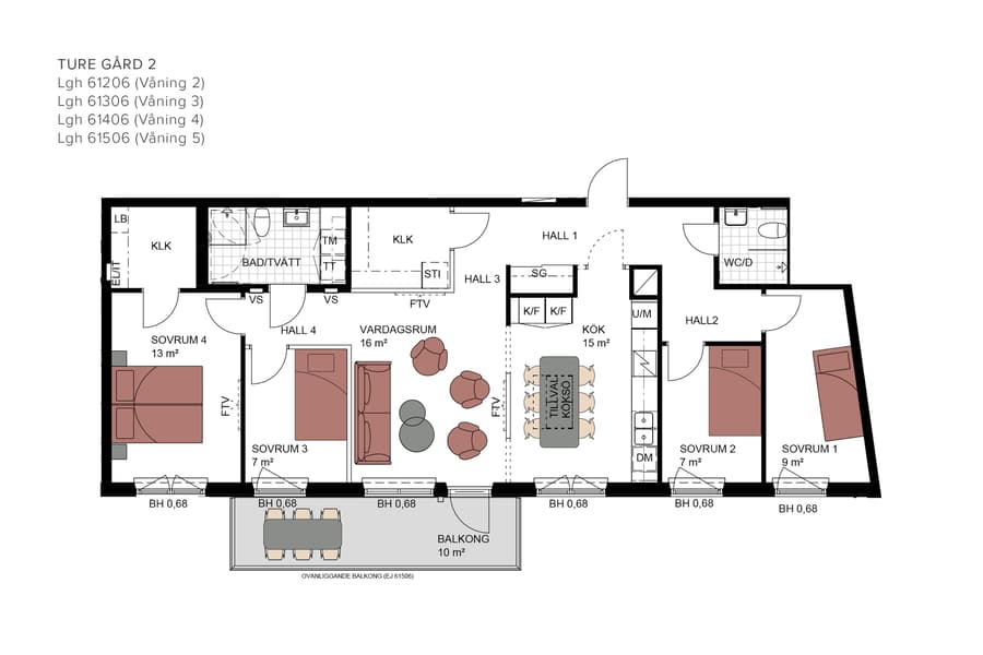
5 rok, 106 m²
Denna nyproducerade femma ligger högst upp i trapphuset och har en stor möblerbar balkong mot gården i sydvästläge.
När du kliver över tröskeln välkomnas du av en hall med bra förvaringsmöjligheter i både skjutdörrsgarderob med spegelglas och stor klädkammare. Vidare in i denna välplanerade lägenhet har du lägenhetens hjärta och de stora sociala ytorna med social planlösning där vardagsrum och kök ligger bredvid varandra. Här finns plats för både soffgrupp och matbord. Denna lägenhet ligger i sydvästläge med alla fönster mot den fint grönskande gården. Från vardagsrummet har du även utgång till den stora balkongen mot gården. På balkongen finns plats för utemöbler, där du kan slå dig ner och vila en stund efter en lång dag.
Denna femma har fyra sovrum, två på enda sidan av lägenheten och två på den andra. Det största sovrummet har plats för dubbelsäng och här har du även ingång till en stor praktisk walk-in closet. I lägenheten finns även två badrum. Till bostaden hör även ett förråd i källaren.
Bostaden har en modern och genomtänkt inredningsstil med ljus känsla. Väggar och tak i lägenheten är vita och harmonierar fint med 3-stavs ekparketten på golvet och fönsterbänkarna i grå kalksten.
Köket inreds med Borätt Original och har snygga släta luckor och en bänkskiva som fortsätter en bit upp på väggen i form av en snygg bakkantslist i samma färg. För att få harmoniskt ljus finns det över bänkskivan en LED-list med dimmer, som ger ett bra och energisnålt arbetsljus. Köket är fullt utrustat med alla moderniteter såsom induktionshäll, varmluftsugn, mikro, två rostfria kyl/frys och integrerad diskmaskin.
Här erbjuds även under en begränsad period möjlighet att välja egna tillvalkombinationer mot kostnad samt vissa kostnadsfria val, för att skapa ett hem som är utformad just för dig.
Badrummet har en snygg stilren design med helkaklade väggar och klinkergolv. Här har du tillgång till WC, dusch med svängbara duschväggar i klarglas, utfällbar torkställning och kommod med eluttag. För att lägenheten ska bli så funktionell som möjligt är badrummet även inrett med separat tvättmaskin och torktumlare. Ovan dessa finns även en praktisk arbetsbänk och väggskåp för extra förvaringsmöjligheter. För en ljus och modern känsla sitter infällda spotlights i taket.
I denna lägenhet finns utöver det större badrummet även en extra gäst-WC med dusch. Denna passar perfekt för den större familjen eller vid besök av gäster. Den är utrustad med WC, dusch med duschdörr i glas, kommod, klinkergolv, infällda spotlights i tak och kaklade vita väggar.
Hitta ditt nya boende i Turekvarteren. Här byggs nya moderna och stilrena bostadsrätter där nästan alla har balkong eller uteplats. Här bor du i kvarter med stor gemensam innergård med många grönskande planteringar, utemöbler, boulebana och växthus för den odlingsintresserade.
I området Tureberg bor du i ett nyproduktionsområde nära grönområden. På andra sidan gatan har du den nyrenoverade och väl tilltagna Fågelsångsparken med lekytor för barn och stora gröna gräsmattor för den som vill känna gräset under fötterna för en stund. Intill parken har du villakvarter som sträcker sig ända bort till Edsvikens vatten och småbåtshamn.
Här bor du i centralt läge i Sollentuna med bara cirka 400 meter till Sollentuna Centrum och dess galleria som erbjuder mängder av butiker och restauranger. Kommunikationerna här är mycket goda. Pendeltågsstationen ligger i centrum och den tar dig in till City på bara cirka 15 minuter. Är du bilburen kommer du snabbt ut på E4:an och det planeras för garage i två plan under gården.
När du kliver över tröskeln välkomnas du av en hall med bra förvaringsmöjligheter i både skjutdörrsgarderob med spegelglas och stor klädkammare. Vidare in i denna välplanerade lägenhet har du lägenhetens hjärta och de stora sociala ytorna med social planlösning där vardagsrum och kök ligger bredvid varandra. Här finns plats för både soffgrupp och matbord. Denna lägenhet ligger i sydvästläge med alla fönster mot den fint grönskande gården. Från vardagsrummet har du även utgång till den stora balkongen mot gården. På balkongen finns plats för utemöbler, där du kan slå dig ner och vila en stund efter en lång dag.
Denna femma har fyra sovrum, två på enda sidan av lägenheten och två på den andra. Det största sovrummet har plats för dubbelsäng och här har du även ingång till en stor praktisk walk-in closet. I lägenheten finns även två badrum. Till bostaden hör även ett förråd i källaren.
Bostaden har en modern och genomtänkt inredningsstil med ljus känsla. Väggar och tak i lägenheten är vita och harmonierar fint med 3-stavs ekparketten på golvet och fönsterbänkarna i grå kalksten.
Köket inreds med Borätt Original och har snygga släta luckor och en bänkskiva som fortsätter en bit upp på väggen i form av en snygg bakkantslist i samma färg. För att få harmoniskt ljus finns det över bänkskivan en LED-list med dimmer, som ger ett bra och energisnålt arbetsljus. Köket är fullt utrustat med alla moderniteter såsom induktionshäll, varmluftsugn, mikro, två rostfria kyl/frys och integrerad diskmaskin.
Här erbjuds även under en begränsad period möjlighet att välja egna tillvalkombinationer mot kostnad samt vissa kostnadsfria val, för att skapa ett hem som är utformad just för dig.
Badrummet har en snygg stilren design med helkaklade väggar och klinkergolv. Här har du tillgång till WC, dusch med svängbara duschväggar i klarglas, utfällbar torkställning och kommod med eluttag. För att lägenheten ska bli så funktionell som möjligt är badrummet även inrett med separat tvättmaskin och torktumlare. Ovan dessa finns även en praktisk arbetsbänk och väggskåp för extra förvaringsmöjligheter. För en ljus och modern känsla sitter infällda spotlights i taket.
I denna lägenhet finns utöver det större badrummet även en extra gäst-WC med dusch. Denna passar perfekt för den större familjen eller vid besök av gäster. Den är utrustad med WC, dusch med duschdörr i glas, kommod, klinkergolv, infällda spotlights i tak och kaklade vita väggar.
Hitta ditt nya boende i Turekvarteren. Här byggs nya moderna och stilrena bostadsrätter där nästan alla har balkong eller uteplats. Här bor du i kvarter med stor gemensam innergård med många grönskande planteringar, utemöbler, boulebana och växthus för den odlingsintresserade.
I området Tureberg bor du i ett nyproduktionsområde nära grönområden. På andra sidan gatan har du den nyrenoverade och väl tilltagna Fågelsångsparken med lekytor för barn och stora gröna gräsmattor för den som vill känna gräset under fötterna för en stund. Intill parken har du villakvarter som sträcker sig ända bort till Edsvikens vatten och småbåtshamn.
Här bor du i centralt läge i Sollentuna med bara cirka 400 meter till Sollentuna Centrum och dess galleria som erbjuder mängder av butiker och restauranger. Kommunikationerna här är mycket goda. Pendeltågsstationen ligger i centrum och den tar dig in till City på bara cirka 15 minuter. Är du bilburen kommer du snabbt ut på E4:an och det planeras för garage i två plan under gården.










