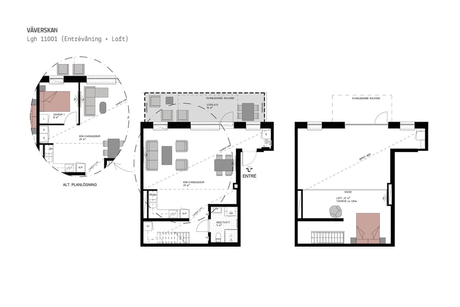
2 rok, 53 m²
Tag chansen att förvärva ett ovanligt och ytterst tilltalande boende i fina kvarter på Södermalm. Denna moderna nyproducerade studiolägenhet med takhöjd upp till 4.60 meter samt ett mysigt loft om ca 23 kvm har en generös rymd och fint läge mot gården. Lägg därtill en egen uteplats vilken löper längs med hela lägenheten.
Direkt i hallen ser du trappan som leder upp till den fina sovloftet vilket ger en trivsam sovplats.
Från hallen nås även det stilrena badrummet vilket har grått klinkergolv och väggar kaklade med matt vitt kakel. Infällda spotlights i tak och glasduschväggar. Möjlighet att välja till badkar finns. Snygg kommod med tvättställ och en spegel med belysning ovan. Badrummet är utrustat med en tvättmaskin och torktumlare med arbetsbänk ovan och vägghängda skåp för förvaring.
Vardagsrummet och köket får genom sin takhöjd en enorm rymd och de stora fönsterna ger ett fint ljusinsläpp. Ytorna är väl avvägda och både soffgruppen och matbordet har sin givna plats. Uteplatsen löper längs med hela lägenheten och ger extra yta under varma dagar.
Köket är inrett i en klassisk stil med släta luckor och kompositsten på bänkytorna, vilken även fortsätter en bit upp på väggen som stänkskydd och ramar in köket på ett bra sätt. Vitvarorna och induktionshällen är noga utvalda ur både energi- och kvalitetssynpunkt. Det finns stora möjligheter sätta sin egen prägel på köket genom den mängd av tillval som erbjuds, bland annat en mindre köksö.
Sovrummet har plats för dubbelsäng och har även utgång till uteplatsen. Fin förvaring dels i en separat det klädkammare, dels i fristående garderober.
Bostadens materialval med den svagt vitlaserad ekparketten, fönsterbänkarna i grå natursten samt de vitmålade väggarna ger en stilren och klassisk interiör. Det finns också möjlighet till flertalet tillval, bland annat olika golv och väggkulörer. Lägenheten har även väggar som kan väljas till eller tas bort och skapar på så sätt en mycket flexibel planlösning. Till lägenheten hör ett förråd i källaren och garage kommer att finnas.
Kvarteret Väverskan är beläget mellan Vitabergsparken, Danvikstull och Hammarby Sjö och här erbjuds ett stort serviceutbud, sjudande restaurangliv och mysiga caféer. Fina parker och promenadstråk i stadsmiljö likväl som längs vattnet. Kommunikationerna är goda och det är gångavstånd till mycket.
Direkt i hallen ser du trappan som leder upp till den fina sovloftet vilket ger en trivsam sovplats.
Från hallen nås även det stilrena badrummet vilket har grått klinkergolv och väggar kaklade med matt vitt kakel. Infällda spotlights i tak och glasduschväggar. Möjlighet att välja till badkar finns. Snygg kommod med tvättställ och en spegel med belysning ovan. Badrummet är utrustat med en tvättmaskin och torktumlare med arbetsbänk ovan och vägghängda skåp för förvaring.
Vardagsrummet och köket får genom sin takhöjd en enorm rymd och de stora fönsterna ger ett fint ljusinsläpp. Ytorna är väl avvägda och både soffgruppen och matbordet har sin givna plats. Uteplatsen löper längs med hela lägenheten och ger extra yta under varma dagar.
Köket är inrett i en klassisk stil med släta luckor och kompositsten på bänkytorna, vilken även fortsätter en bit upp på väggen som stänkskydd och ramar in köket på ett bra sätt. Vitvarorna och induktionshällen är noga utvalda ur både energi- och kvalitetssynpunkt. Det finns stora möjligheter sätta sin egen prägel på köket genom den mängd av tillval som erbjuds, bland annat en mindre köksö.
Sovrummet har plats för dubbelsäng och har även utgång till uteplatsen. Fin förvaring dels i en separat det klädkammare, dels i fristående garderober.
Bostadens materialval med den svagt vitlaserad ekparketten, fönsterbänkarna i grå natursten samt de vitmålade väggarna ger en stilren och klassisk interiör. Det finns också möjlighet till flertalet tillval, bland annat olika golv och väggkulörer. Lägenheten har även väggar som kan väljas till eller tas bort och skapar på så sätt en mycket flexibel planlösning. Till lägenheten hör ett förråd i källaren och garage kommer att finnas.
Kvarteret Väverskan är beläget mellan Vitabergsparken, Danvikstull och Hammarby Sjö och här erbjuds ett stort serviceutbud, sjudande restaurangliv och mysiga caféer. Fina parker och promenadstråk i stadsmiljö likväl som längs vattnet. Kommunikationerna är goda och det är gångavstånd till mycket.


















