3 rok, 76 m²
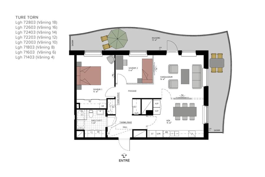
Välkommen till Ture Torn, detta arkitektritade höga torn, som snart kommer bli ett stolt landmärke vid Sollentuna Centrum. Här blir dina drömmar om ett unikt hem verklighet. Denna nyproducerade lägenhet ligger i denna höga imponerande byggnad och har en mycket generös balkong på ca 33 kvm som ligger i sydost och nordost. Här har du stora ytor där du kan njuta av livet och skapa nya minnen.
Kliv in och känn den trivsamma och harmoniska atmosfären. Här har inredaren tänkt på känsla och funktionalitet från början. Här välkomnas du in i praktisk hall med dubbla skjutdörrsgarderober. Vidare in i lägenheten känner du dig direkt hemma och här öppnas lägenheten upp i de stora sociala delarna med kök och vardagsrum bredvid varandra. Laga middag, häng med dina vänner eller koppla av en stund här i de generösa utrymmena. Vardagsrummet får här en fin rymd då det är placerat i hörnet av lägenheten där du får ett härligt ljusinsläpp från fönster i två väderstreck. Här ger de många fönsterna, den välplanerade planlösningen och de moderna inredningsvalen en känsla av ljus och luftighet. Från vardagsrummet öppnar även dörren upp sig mot den unika och mycket stora balkongen som går längs med utsidan av hela lägenheten. Här finns plats för både utemöbler och solstolar och du kan här umgås med din familj eller vänner.
Denna stilrena hörnlägenhet har två sovrum, varav det största har en lång skjutdörrsgarderob. Till bostaden hör även ett förråd i källaren, vilket ger extra bekvämlighet till boendet.
Bostaden är stilfullt inredd med en genomtänkt och ljus stil. Väggar och tak i lägenheten harmonierar fint med 3-stavs ekparketten på golvet och fönsterbänkarna i grå kalksten.
Köket inreds med släta luckor och bänkskiva som fortsätter en bit upp på väggen i form av en snygg bakkantslist i samma färg. Över bänkskivan sitter en LED-list med dimmer, som ger ett bra och energisnålt arbetsljus. Väggskåpen är handtagslösa vilket skapar en stilren och rymlig känsla. Lådor och bänkskåp har rostfria handtag. Köket är fullt utrustat med funktionella och kvalitativa bekvämligheter såsom induktionshäll, varmluftsugn, mikro, dubbla kyl/frys i rostfritt och integrerad diskmaskin.
Badrummet har en snygg tidlös design med helkaklade väggar med stora matta vita kakelplattor och beige klinkergolv. Här finns även WC, dusch med svängbara duschväggar i klarglas, en väggmonterad utfällbar torkställning och kommod med eluttag. För att lägenheten ska bli så funktionell som möjligt är badrummet även inrett med både tvättmaskin och torktumlare. Ovan denna finns även en praktisk arbetsbänk i vitt och väggskåp med släta vita luckor. För en ljus och modern känsla sitter infällda spotlights i taket.
Lägenheten har målade väggar i ljusgrått (NCS 1002-Y) i hall/passage, kök och vardagsrum. Vita väggar i sovrum. Köksluckorna är ljusgrå och färgen heter Varmgrå, bänkskivan heter Cento (gråbeige) och handtagen på nedre skåpen/lådorna är rostfria och heter Akleja. Badrummet har vitt kakel och klinkergolv i beige (Antica white).
Kvarteret ligger i centralt läge i Sollentuna, nära parker, fotbollsplan och på promenadavstånd har du Edsvikens vattenlinje med småbåtshamn och badplats. Det är bara ca 400 meter till populära Sollentuna Centrum, som har stor galleria med restauranger och affärer. Kommunikationerna är mycket bra med bussar och pendeltåg (Sollentuna), som tar en dryg kvart till Centralen. Här har du även nära access till E4 för de som är bilburna.
Kliv in och känn den trivsamma och harmoniska atmosfären. Här har inredaren tänkt på känsla och funktionalitet från början. Här välkomnas du in i praktisk hall med dubbla skjutdörrsgarderober. Vidare in i lägenheten känner du dig direkt hemma och här öppnas lägenheten upp i de stora sociala delarna med kök och vardagsrum bredvid varandra. Laga middag, häng med dina vänner eller koppla av en stund här i de generösa utrymmena. Vardagsrummet får här en fin rymd då det är placerat i hörnet av lägenheten där du får ett härligt ljusinsläpp från fönster i två väderstreck. Här ger de många fönsterna, den välplanerade planlösningen och de moderna inredningsvalen en känsla av ljus och luftighet. Från vardagsrummet öppnar även dörren upp sig mot den unika och mycket stora balkongen som går längs med utsidan av hela lägenheten. Här finns plats för både utemöbler och solstolar och du kan här umgås med din familj eller vänner.
Denna stilrena hörnlägenhet har två sovrum, varav det största har en lång skjutdörrsgarderob. Till bostaden hör även ett förråd i källaren, vilket ger extra bekvämlighet till boendet.
Bostaden är stilfullt inredd med en genomtänkt och ljus stil. Väggar och tak i lägenheten harmonierar fint med 3-stavs ekparketten på golvet och fönsterbänkarna i grå kalksten.
Köket inreds med släta luckor och bänkskiva som fortsätter en bit upp på väggen i form av en snygg bakkantslist i samma färg. Över bänkskivan sitter en LED-list med dimmer, som ger ett bra och energisnålt arbetsljus. Väggskåpen är handtagslösa vilket skapar en stilren och rymlig känsla. Lådor och bänkskåp har rostfria handtag. Köket är fullt utrustat med funktionella och kvalitativa bekvämligheter såsom induktionshäll, varmluftsugn, mikro, dubbla kyl/frys i rostfritt och integrerad diskmaskin.
Badrummet har en snygg tidlös design med helkaklade väggar med stora matta vita kakelplattor och beige klinkergolv. Här finns även WC, dusch med svängbara duschväggar i klarglas, en väggmonterad utfällbar torkställning och kommod med eluttag. För att lägenheten ska bli så funktionell som möjligt är badrummet även inrett med både tvättmaskin och torktumlare. Ovan denna finns även en praktisk arbetsbänk i vitt och väggskåp med släta vita luckor. För en ljus och modern känsla sitter infällda spotlights i taket.
Lägenheten har målade väggar i ljusgrått (NCS 1002-Y) i hall/passage, kök och vardagsrum. Vita väggar i sovrum. Köksluckorna är ljusgrå och färgen heter Varmgrå, bänkskivan heter Cento (gråbeige) och handtagen på nedre skåpen/lådorna är rostfria och heter Akleja. Badrummet har vitt kakel och klinkergolv i beige (Antica white).
Kvarteret ligger i centralt läge i Sollentuna, nära parker, fotbollsplan och på promenadavstånd har du Edsvikens vattenlinje med småbåtshamn och badplats. Det är bara ca 400 meter till populära Sollentuna Centrum, som har stor galleria med restauranger och affärer. Kommunikationerna är mycket bra med bussar och pendeltåg (Sollentuna), som tar en dryg kvart till Centralen. Här har du även nära access till E4 för de som är bilburna.










