2 rok, 55 m²
Välkommen till Ture Torn, detta arkitektritade höga torn med dess kvarter, som kommer bli ett nytt landmärke vid Sollentuna Centrum. Denna nyproducerade lägenhet har en fantastisk balkong på ca 26 kvm i två väderstreck.
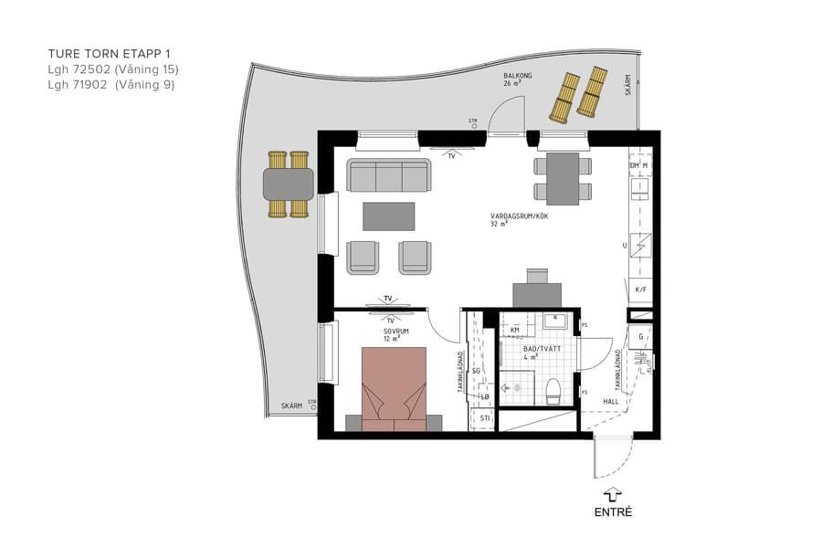
Här välkomnas du in i hall med hatthylla och garderob. Det stilrena badrummet ligger med ingång från hallen och lite vidare in kommer du till lägenhetens stora sociala delar. Här har du en fin öppen planlösning mellan kök och vardagsrum och här finns plats för både matbord och soffgrupp. Många fönster ger här ett fint ljusinsläpp i lägenheten. Härifrån har du även utgång till den stora möblerbara balkongen som går utanför lägenhetens alla fönster.
Längst in i lägenhet har du ett rymligt sovrum med plats för dubbelsäng och har en lång praktisk skjutdörrsgarderob. Till bostaden hör även ett förråd i källaren.
Bostaden är stilfullt inredd med en genomtänkt och ljus stil. Väggar och tak i lägenheten harmonierar fint med 3-stavs ekparketten på golvet och fönsterbänkarna i grå kalksten.
Köket inreds med släta luckor och bänkskiva som fortsätter en bit upp på väggen i form av en snygg bakkantslist i samma färg. Över bänkskivan sitter en LED-list med dimmer, som ger ett bra och energisnålt arbetsljus. Väggskåpen är handtagslösa vilket skapar en stilren och rymlig känsla. Lådor och bänkskåp har rostfria handtag. Köket är fullt utrustat med funktionella och kvalitativa bekvämligheter såsom induktionshäll, varmluftsugn, mikro, rostfri kyl/frys och integrerad diskmaskin.
Badrummet har en snygg tidlös design med helkaklade väggar med stora matta vita kakelplattor och beige klinkergolv. Här finns även WC, dusch med svängbara duschväggar i klarglas, en väggmonterad utfällbar torkställning och kommod med eluttag. För att lägenheten ska bli så funktionell som möjligt är badrummet även inrett med en kombinerad tvätt- och torktumlare. Ovan denna finns även en praktisk arbetsbänk i vitt och väggskåp med släta vita luckor. För en ljus och modern känsla sitter infällda spotlights i taket.
Lägenheten har målade väggar i ljusgrått (NCS 1002-Y) i hall/passage, kök och vardagsrum. Vita väggar i sovrum. Köksluckorna är ljusgrå och färgen heter Varmgrå, bänkskivan heter Cento (gråbeige) och handtagen på nedre skåpen/lådorna är rostfria och heter Akleja. Badrummet har vitt kakel och klinkergolv i beige (Antica white).
Kvarteret ligger i centralt läge i Sollentuna, nära parker, fotbollsplan och på promenadavstånd har du Edsvikens vattenlinje med småbåtshamn och badplats. Det är bara ca 400 meter till populära Sollentuna Centrum, som har stor galleria med restauranger och affärer. Kommunikationerna är mycket bra med bussar och pendeltåg (Sollentuna), som tar en dryg kvart till Centralen. Här har du även nära access till E4 för de som är bilburna.
Här välkomnas du in i hall med hatthylla och garderob. Det stilrena badrummet ligger med ingång från hallen och lite vidare in kommer du till lägenhetens stora sociala delar. Här har du en fin öppen planlösning mellan kök och vardagsrum och här finns plats för både matbord och soffgrupp. Många fönster ger här ett fint ljusinsläpp i lägenheten. Härifrån har du även utgång till den stora möblerbara balkongen som går utanför lägenhetens alla fönster.
Längst in i lägenhet har du ett rymligt sovrum med plats för dubbelsäng och har en lång praktisk skjutdörrsgarderob. Till bostaden hör även ett förråd i källaren.
Bostaden är stilfullt inredd med en genomtänkt och ljus stil. Väggar och tak i lägenheten harmonierar fint med 3-stavs ekparketten på golvet och fönsterbänkarna i grå kalksten.
Köket inreds med släta luckor och bänkskiva som fortsätter en bit upp på väggen i form av en snygg bakkantslist i samma färg. Över bänkskivan sitter en LED-list med dimmer, som ger ett bra och energisnålt arbetsljus. Väggskåpen är handtagslösa vilket skapar en stilren och rymlig känsla. Lådor och bänkskåp har rostfria handtag. Köket är fullt utrustat med funktionella och kvalitativa bekvämligheter såsom induktionshäll, varmluftsugn, mikro, rostfri kyl/frys och integrerad diskmaskin.
Badrummet har en snygg tidlös design med helkaklade väggar med stora matta vita kakelplattor och beige klinkergolv. Här finns även WC, dusch med svängbara duschväggar i klarglas, en väggmonterad utfällbar torkställning och kommod med eluttag. För att lägenheten ska bli så funktionell som möjligt är badrummet även inrett med en kombinerad tvätt- och torktumlare. Ovan denna finns även en praktisk arbetsbänk i vitt och väggskåp med släta vita luckor. För en ljus och modern känsla sitter infällda spotlights i taket.
Lägenheten har målade väggar i ljusgrått (NCS 1002-Y) i hall/passage, kök och vardagsrum. Vita väggar i sovrum. Köksluckorna är ljusgrå och färgen heter Varmgrå, bänkskivan heter Cento (gråbeige) och handtagen på nedre skåpen/lådorna är rostfria och heter Akleja. Badrummet har vitt kakel och klinkergolv i beige (Antica white).
Kvarteret ligger i centralt läge i Sollentuna, nära parker, fotbollsplan och på promenadavstånd har du Edsvikens vattenlinje med småbåtshamn och badplats. Det är bara ca 400 meter till populära Sollentuna Centrum, som har stor galleria med restauranger och affärer. Kommunikationerna är mycket bra med bussar och pendeltåg (Sollentuna), som tar en dryg kvart till Centralen. Här har du även nära access till E4 för de som är bilburna.












